
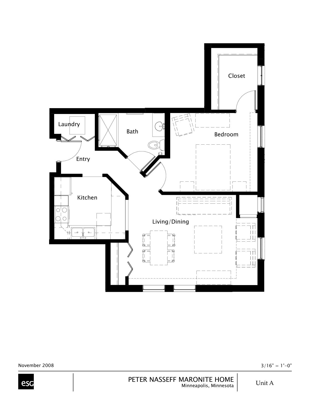
Floor Plan: Unit A
One Bedroom,
Southeast Corner 1st, 2nd & 3rd Floors
Southwest Corner 2nd & 3rd Floors
5 Units @ 756 square feet each
Additional information: Call our office at 612-331-2500
[ Back to top ]
Skip to: Site menu | Main content

One Bedroom,
Southeast Corner 1st, 2nd & 3rd Floors
Southwest Corner 2nd & 3rd Floors
5 Units @ 756 square feet each
Additional information: Call our office at 612-331-2500
[ Back to top ]